티스토리 뷰
경기도 안산 국민임대 고잔휴먼시아그린빌17단지 모집공고, 공급, 임대료, 평면도, 위치 등에 대해서 알아봅니다.
고잔휴먼시아그린빌17단지은 다양한 편의시설을 갖춘 지역에 위치하고 있습니다.
목차
고잔휴먼시아그린빌17단지 국민임대

상세정보
- 주소 경기도 안산시 단원구 초지2로 11
- 주택명 고잔휴먼시아그린빌17단지
- 지하철역 4호선 고잔역
- 규모 796
위치정보
공급정보

임대보증금 및 월 임대료는 입주자 모집공고일 기준이며, 보증금 최대 전환 시 변동될 수 있습니다.
국민임대주택는 분양전환이 되지 않는 아파트로써, 입주민에게 주택을 분양하지 않고 첫 계약 후 2년마다 재계약을 하는 방식으로 최대 30년까지 거주하게 하는 주택입니다.
단지 배치도
동호 배치도
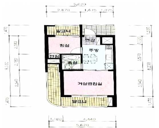
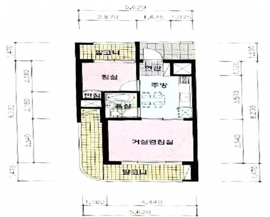
주택 평면도
36A

36B

36C

36D

36E

36F

45

46B

모집공고 다운로드
경기도에서는 대학생, 청년, 신혼부부 등을 위해 학교나 직장이 가까운 곳이나 대중교통이 편리한 곳에 국가재정과 주택도시기금을 지원 받아 건설, 공급하는 임대주택을 제공하고 있습니다.
임대주택을 잘 알아보시며, 적은 비용으로 주거안정과 더불어 행복한 삶을 영위할 수 있으니 알아보시기 바랍니다.
해당기관 공고페이지 바로가기
임대주택 주요 정보 알아보기
주택 관련 정보 더보기
- 주거급여 자격조건 신청방법 알아보기
- 임대주택 종류 총정리 (국민,공공,행복,장기,영구)
- 국민임대 주택 정보 총정리
- 국민임대 주택 정보 총정리
- 통합공공임대 주택 정보 총정리
- 국민임대 정보 총정리
- 장기전세 정보 총정리
- 공공임대 정보 총정리
- 청년안심주택 정보 총정리
청약점수 계산
입주자 모집공고
- LH청약플러스 홈페이지에서 확인
- GH주택청약센터 홈페이지에서 확인
- 청약 > 임대주택 > 공고문 선택
임대문의
- 전국 대표전화 1600-1004
- 운영시간 평일 09:00~18:00 (점심시간 12:00~13:00)
- 토,일 공휴일 휴무
인터넷 신청방법
- 공인 인증서 준비
- LH/GH 청약시스템 접속
- 인터넷 신청
- 신청 완료
청약 신청 제출 서류
예비입주자 당첨 명단 조회
예비입주자 당첨 명단 조회는 LH청약 홈페이지와 ARS(1661-7700)을 통해 당첨 발표일로부터 30일간 확인할 수 있습니다.
청약 > 청약결과 확인 > 당첨/낙찰 결과조회 에서 로그인 후 확인이 가능합니다.
당첨 사실을 확인하지 못하여 계약 체결을 못한 경우 책임은 신청자 본인에게 있습니다.
예비입주자 대기현황 조회
임대주택에 경우 바로 당첨 후 입주 하는 것이 아니라, 예비입주자 순번을 부여받고 순차적으로 공실이 나면 입주를 하게 됩니다.
당첨되기전에, 내가 청약한 주택에 입주 대기자수를 확인해보고, 내가 언제쯤 입주할지를 가늠해볼 수 있습니다.
예비입주자 대기현황(마이홈)에서 해당 단지를 검색하면, 입주 대기자수를 확인이 가능합니다.
'안산시' 카테고리의 다른 글
| 안양 공공임대 래미안안양메가트리아 모집공고 및 평면도 (39,49형) (0) | 2024.05.10 |
|---|---|
| 안산 국민임대 고잔주공그린빌16단지 모집공고 (36,45,46형) (0) | 2024.05.10 |
| 안산 국민임대 안산팔곡주공 모집공고 및 평면도 (36,46형) (0) | 2024.05.10 |
| 안산 국민임대 안산신길휴먼시아7단지 모집공고 (36,46,51형) (1) | 2024.05.10 |
| 안산 국민임대 안산신길휴먼시아2단지 모집공고 (36,46,51형) (0) | 2024.05.10 |